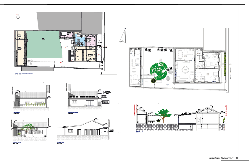
mars 4, 2022mars 4, 2022 Réhabilitation d’une maison individuelle en ERP-Lieu de création et coworking Similaire